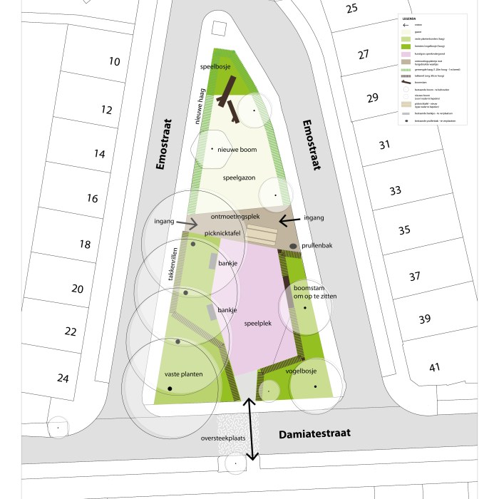
Project Speelplek EmostraatLocatie Emostraat, Gemeente HaarlemOpdrachtgever Gemeente Haarlem Start ontwerp november 2024 – hedenStatus schetsontwerp In samenwerking met Zorg in de Tuin (beplanting en participatie) De speelplek aan de Emostraat – Damiatestraat wordt vernieuwd! Uiteraard mogen de bewoners meedenken over de toekomstige inrichting. Er ligt een ontwerp […]
Bieke Van Hees werkt sinds 2007 als landschapsarchitect aan diverse projecten op verschillende schaalniveaus: van masterplannen en ontwerpend onderzoek tot uitvoeringsprojecten. Van ontwerpend onderzoek voor het Toekomstperspectief Kust tot de herinrichting van het Osdorpplein in Amsterdam.
Daarnaast geeft ze onder andere les aan de Academie van Bouwkunst in Amsterdam en is ze vakcoördinator Landschapsarchitectuur bij PEP.
----------------------------------------------------------------------------------------------------------------
Neem contact op voor meer informatie:
info@biekevanhees.com
0031 6 48 22 08 33











