Project Speelplek Emostraat
Locatie Emostraat, Gemeente Haarlem
Opdrachtgever Gemeente Haarlem
Start ontwerp november 2024 – heden
Status schetsontwerp
In samenwerking met Zorg in de Tuin (beplanting en participatie)
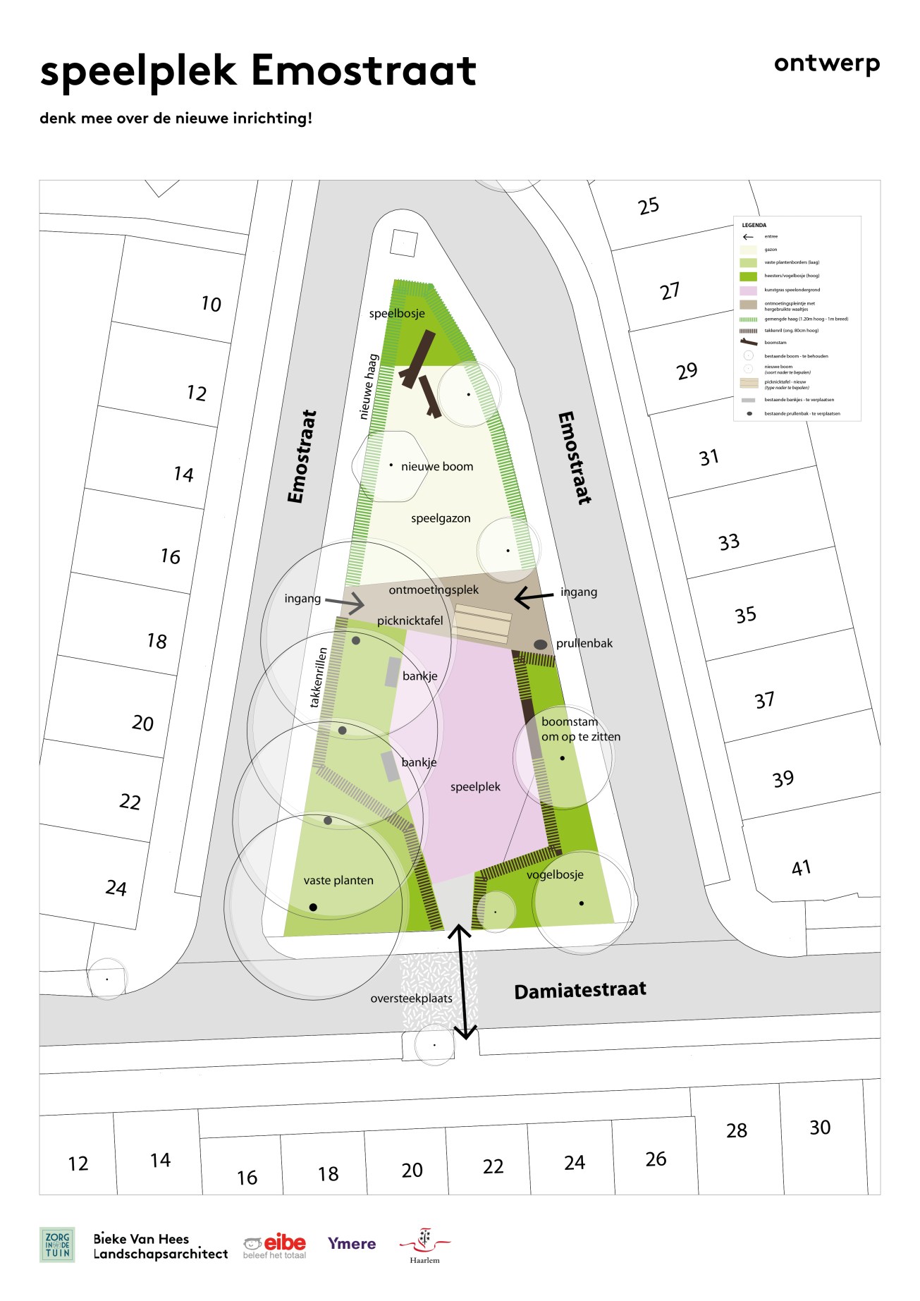
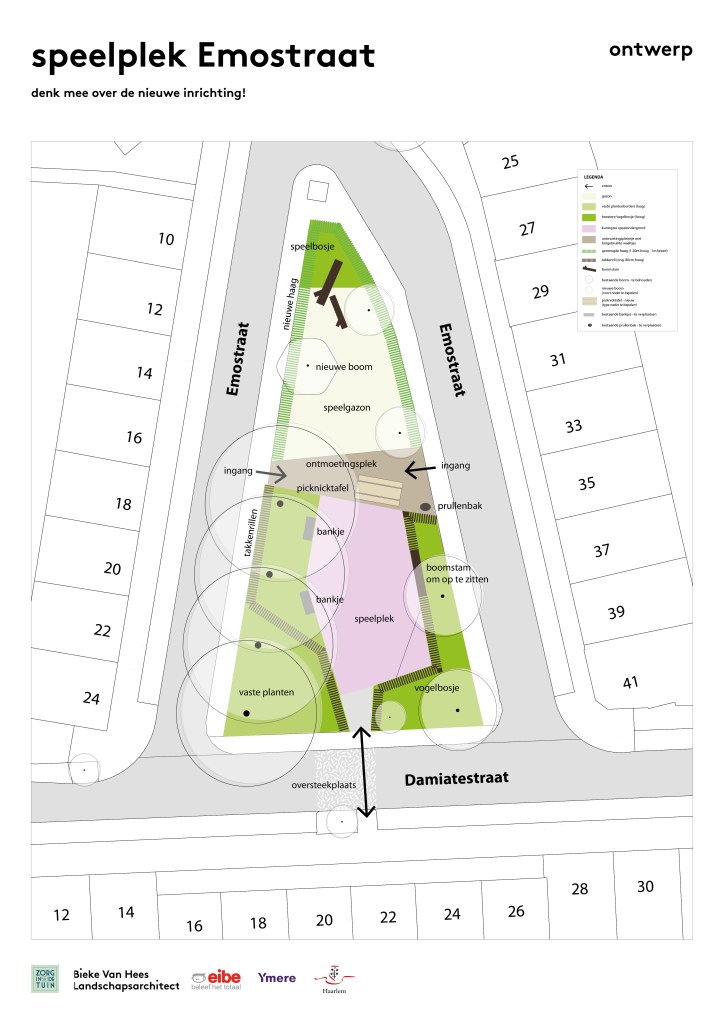
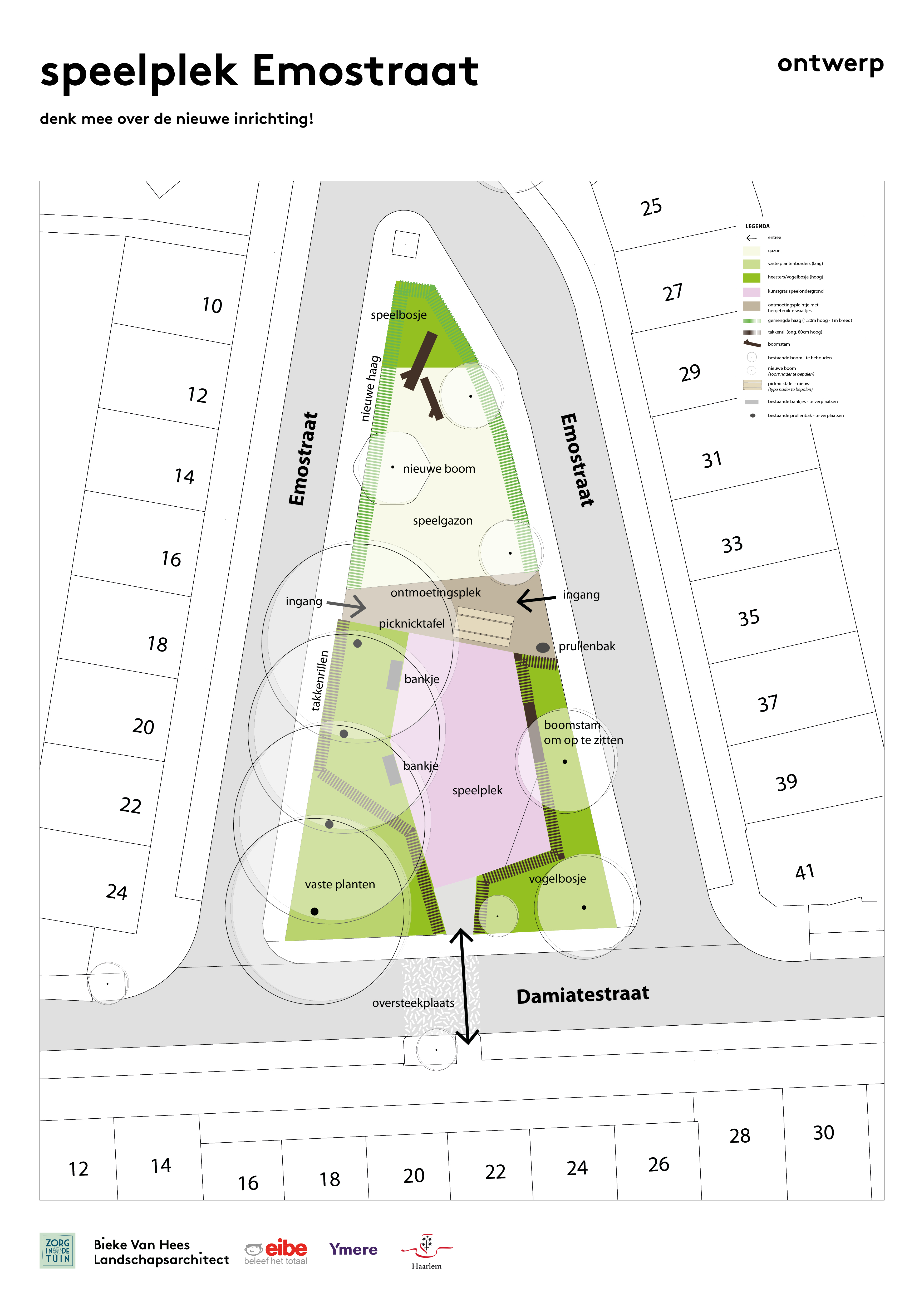
De speelplek aan de Emostraat – Damiatestraat wordt vernieuwd!
Uiteraard mogen de bewoners meedenken over de toekomstige inrichting. Er ligt een ontwerp voor met meer groen, extra bomen en nieuwe speeltoestellen. Bewoners wordt gevraagd te kiezen uit de voorstellen voor speeltoestellen en in welke mate ze betrokken willen zijn bij de aanleg en/of het onderhoud van het groen.
Via deze link is het ontwerp te bekijken
