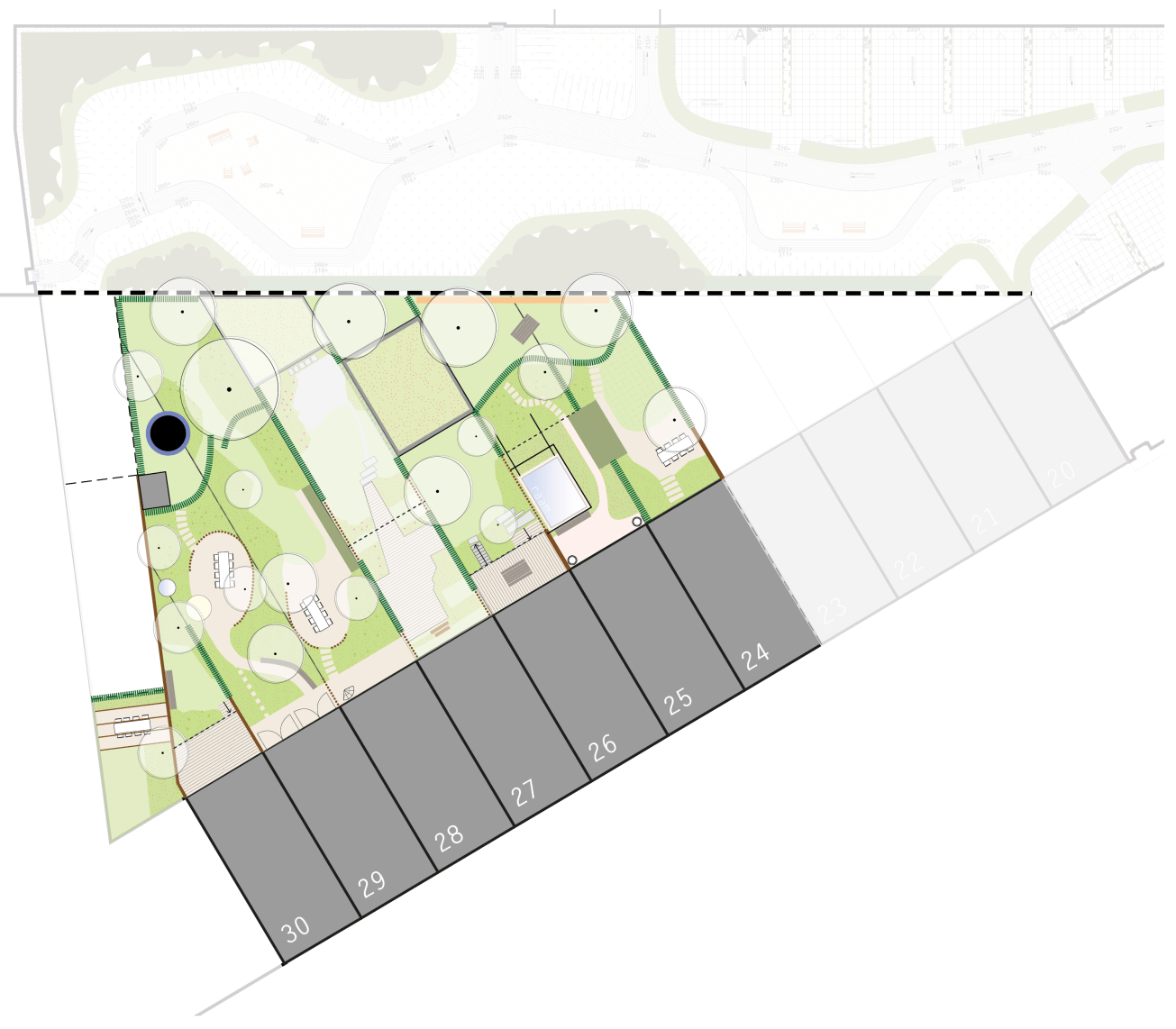
Project Ontwerp gemeenschappelijk raamwerk privétuinen nieuwbouwblok
Locatie Amsterdam Oost
Opdrachtgever groep particulieren
Start ontwerp maart 2019
Oplevering juli 2019
Status afgerond
Een groep toekomstige bewoners van een zelfbouwblok in Amsterdam Oost zochten een gemeenschappelijk raamwerk voor de inrichting van hun tuinen. Op basis van twee scenario’s en zorgvuldig geselecteerde referentiebeelden zijn de bewoners vervolgens zelf aan de slag gegaan met de inrichting van hun tuin.

