Project regionaal onderzoek
Locatie Gelderse Vallei (provincies Gelderland en Utrecht)
Opdrachtgever Projectbureau Vallei en Heuvelrug
Oppervlakte 45.000ha
Ontwerp 2013-2014
Status afgerond
Dit project is tot stand gekomen in dienstverband bij Strootman Landschapsarchitecten
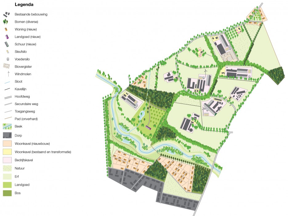
Het buitenbied van de Gelderse Vallei is continu in ontwikkeling door schaalvergroting en functieverandering van agrarische bedrijven, nieuwbouw langs dorpsranden, aanleg van infrastructuur, verbeteren van de waterhuishouding en ontwikkeling van nieuwe natuur. Deze ontwikkelingen hebben hun impact op het landschap: verstening neemt toe en vervlakking dreigt. Dit raakt de kwaliteit van de leefomgeving en daarmee de vitaliteit van deze regio. Strootman Landschapsarchitecten heeft in opdracht van Projectbureau Vallei en Heuvelrug, samen met vertegenwoordigers van de landbouw, zeven deelnemende gemeenten en de provincies Gelderland en Utrecht, een gedragen set ruimtelijke bouwstenen ontwikkeld die door middel van een matrix toegankelijk en uitbreidbaar zijn gemaakt.
Om de herkenbaarheid en de (streek)eigenheid van het landschap van de Gelderse Vallei te versterken verleggen we de koers van ‘landschappelijke inpassing van het nieuwe’, naar het ‘bouwen aan het landschap vanuit de kracht van het nieuwe’. Een wervend toekomstperspectief is de leidraad, maar de route zelf is stapsgewijs, organisch en niet planmatig.

Bouwinitiatieven vormen de katalysator voor landschapsverbetering. Door bijvoorbeeld gelijk met de bouw van een nieuwe stal een deel van een structuurbepalende houtwal langs de kavel aan te leggen; een beeldbepalend bosje in een aangrenzende overhoek te planten; of de beekoever aan de achterzijde van het perceel natuurvriendelijk in te richten.
Gemeenten zijn vooral stimulator en facilitator van het proces. Ze gaan in een vroeg stadium het gesprek met boeren en particulieren aan om samen te kijken welke bijdrage mogelijk is. Ook beoordelen zij de bouwplannen aan de hand van de bouwstenen.
Bouwen aan het landschap van onderop leidt tot verbetering van de eigen leefomgeving, op de plek waar de initiatiefnemer het landschap zelf beleeft en belangrijk vindt. Het is een nieuwe organische manier van landschapsbeheer, het is bouwen aan het landschap op de tussenschaal.
